1
/
of
28
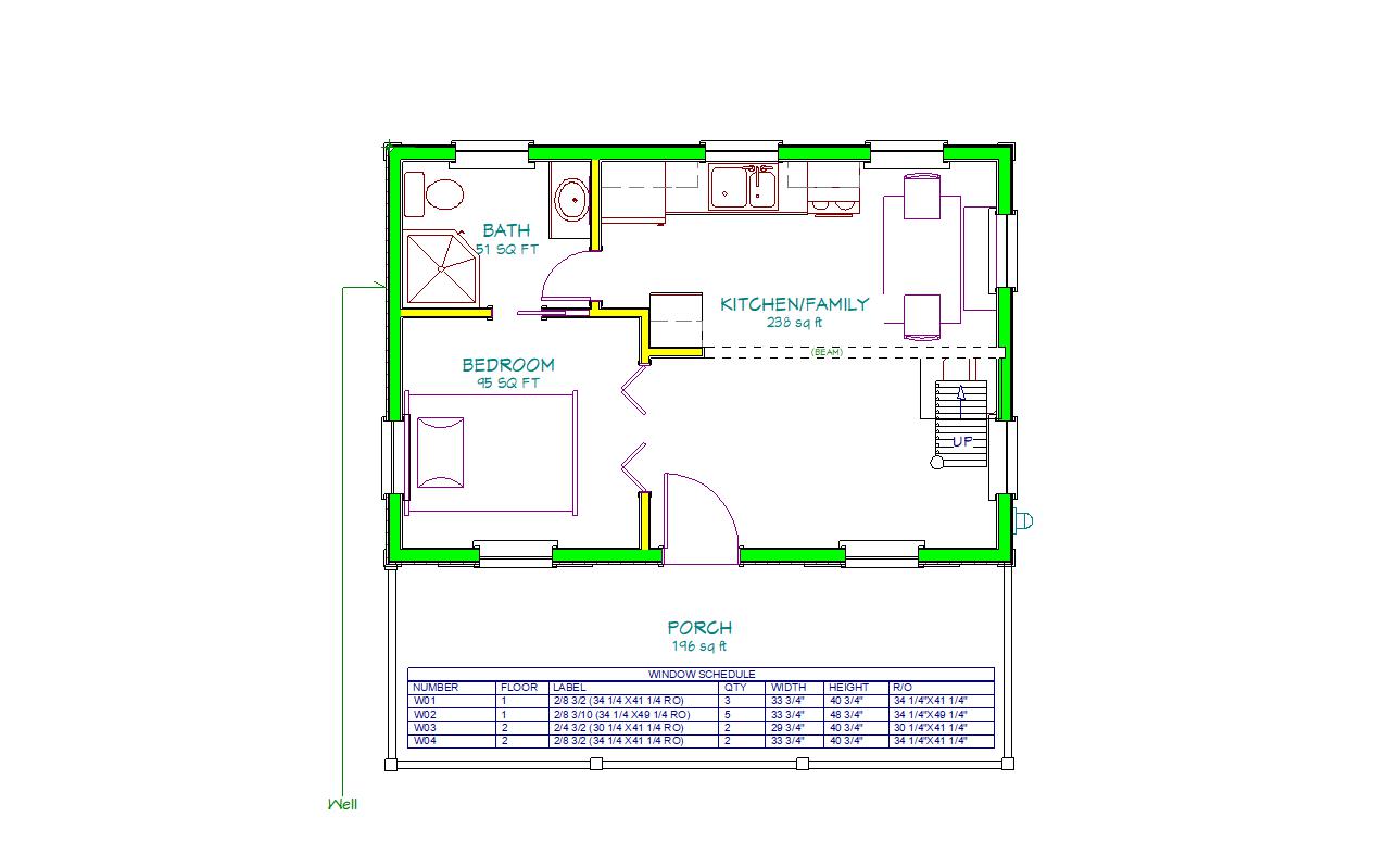
The ADK "Original" Cabin-16'x24' Plans
The ADK "Original" Cabin-16'x24' Plans
Unwind in nature with our 16x24 Adirondack "Original" Cabin Plan "Best Seller"- perfect for 4-6 people. Featuring a charming loft, front porch, full bath and shower, and half bath, this rustic retreat is ideal for hunting, fishing, or just getting away from it all. Download the plans and make your cabin dreams a reality.
Regular price
$185.00 USD
Regular price
$0.00 USD
Sale price
$185.00 USD
Unit price
/
per
Couldn't load pickup availability



























